U3-NÄHE, LORYSTRASSE, sonnige 74 m2 Neubau mit 8 m2 Balkon, 2 Zimmer, Wohnküche, Wannenbad, Garage möglich, 3. Liftstock
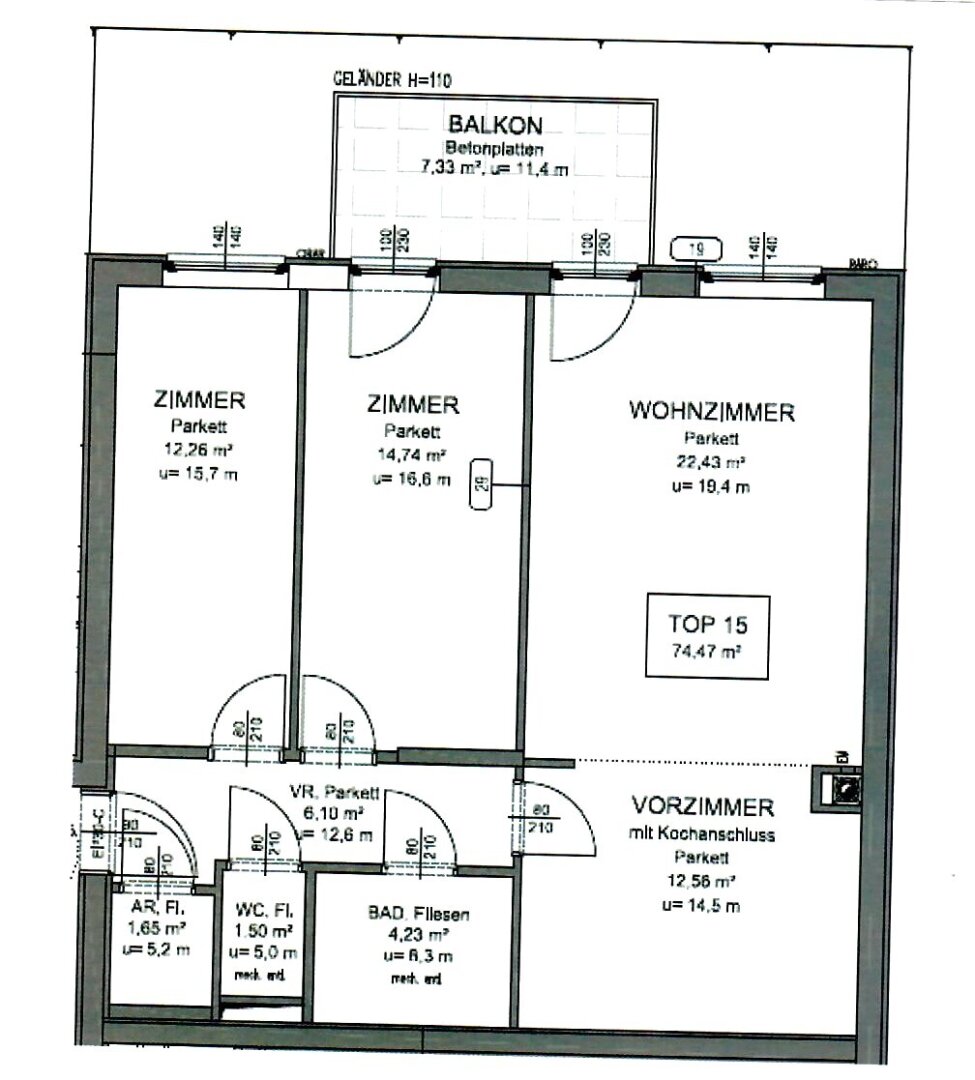
IN DER LORYSTRASSE GELANGT DIESE SONNIGE 74,47 m2 NEUBAUWOHNUNG MIT 7,33 m2 BALKON IM 3. LIFTSTOCK ZUM VERKAUF!
Vorzimmer, Wohn-Esszimmer mit offener Küche, 2 getrennt begehbare Schlafzimmer, Badezimmer, WC, Abstellraum, ca. 7,33 m2 Balkon + Kellerabteil
Die Wohnung ist zurzeit noch bewohnt. Besichtigungen sind nach Rücksprache möglich.
Ausstattung:
+ Küche mit Einbaugeräte
+ Badezimmer mit Badewanne, Doppelwaschtisch und Sprossenheizkörper
+ separates WC mit Waschgelegenheit
+ Abstellraum mit Waschmaschinenanschluss
+ Parketten, Fliesen in den Nassräumen
+ Telekabelfernsehanschluss, Gegensprechanlage
+ Gaszentralheizung
+ Kellerabteil
+ möglicher Tiefgaragenplatz (optional)
+ Sofortbezug möglich
+ HWB 29,01 kWh/m2a
Lage
LORYSTRASSE IN DER NÄHE DER U3-STATIONEN-ENKPLATZ UND SIMMERING sowie Simmeringer Hauptstraße mit bester Infrastruktur des 11. Bezirks wie Braunhuberpark, Braunhubergasse, Römerstahlgasse, Ehamgasse, Herbortgasse sowie optimalen Verkehrsverbindungen wie die die U3-Stationen Enkplatz und Simmering, der Bahnhof Wien-Simmering mit der Verbindung Wien-Flughafen-Bratislava, R 81, REX 8, REX 81 + S80 sowie die Linien 11, 71, D, 15A, 69A, 72A + 73A sind in unmittelbarer Nähe
Sonstiges
Sonstiges
Kaufpreis - Wohnung: € 359.000,00 lastenfrei
Kaufpreis - Stellplatz: € 25.000,00 lastenfrei (Kauf nicht verbindlich!)
Derzeitiger Mietvertrag für den Garagenstellplatz - Nettomiete: € 87,50 per Monat
Betriebskosten - Wohnung:
€ 262,71 inklusive Aufzug und 10 % MwSt. per Monat
Betriebskosten - Garage
€ 24,02 inklusive MwSt. per Monat
Für die Rücklage werden derzeit ca. € 0,35 per m2 zur Vorschreibung gebracht!
Strom, Heizung, mögliche TV/Internet-Anschlüsse werden gesondert zur Vorschreibung gebracht!
Vermittlungsprovision: 3 % der Barkaufsumme zzgl. 20 % MwSt.,
Die Kosten der Vertragserrichtung und grundbücherlichen Durchführung sowie Barauslagen und Stempelgebühren trägt der Käufer
Aufgrund des neuen Fernabsatz- und Auswärtsgeschäfte-Gesetzes zur Umsetzung der EU-Verbraucherrechte-RL, ersuchen wir Sie um Ihr Verständnis, dass wir Ihnen die gewünschten Objekt-Unterlagen erst nach Ihrer Bestätigung, dass Sie unser vorzeitiges Tätigwerden wünschen und über Ihre Rücktrittsrechte aufgeklärt wurden, per Mail zusenden können. Bevor Sie die Unterlagen übermittelt bekommen, erhalten Sie eine gesonderte Mail mit dem notwendigen Hinweis. Obige Angaben basieren auf Informationen des Eigentümers. Der guten Ordnung halber möchten wir festhalten, dass im Falle eines Abschlusses mit Ihnen oder einem von Ihnen namhaft gemachten Dritten unser Honorar (lt. Honorarverordnung für Immobilienmakler, BGBI. 262 und 297/1996) 3 % des Kaufpreises zzgl. der gesetzlichen MwSt. beträgt. Es gelten unsere allgemeinen Geschäftsbedingungen. Irrtum vorbehalten. Hinweis gemäß Energieausweisvorlagegesetz: Ein Energieausweis wurde vom Eigentümer bzw. Verkäufer, nach unserer Aufklärung über die ab 1.12.2012 geltende generelle Vorlagepflicht bereits vorgelegt. Wir übernehmen keinerlei Gewähr oder Haftung für die tatsächliche Energieeffizienz der angebotenen Immobilie.
Lage
Adresse: Lorystraße, 1110 Wien
LORYSTRASSE IN DER NÄHE DER U3-STATIONEN-ENKPLATZ UND SIMMERING sowie Simmeringer Hauptstraße mit bester Infrastruktur des 11. Bezirks wie Braunhuberpark, Braunhubergasse, Römerstahlgasse, Ehamgasse, Herbortgasse sowie optimalen Verkehrsverbindungen wie die die U3-Stationen Enkplatz und Simmering, der Bahnhof Wien-Simmering mit der Verbindung Wien-Bratislava, R 81, REX 8, REX 81 + S80 sowie die Linien 11, 71, D, 15A, 69A, 72A + 73A sind in unmittelbarer Nähe
Details
| Angebotsnummer: 2297 | |
| 3 Zimmer | |
| 74.47 m² | |
| Wohnung | |
| Kauf | |
| Abstellraum | |
| Badewanne | |
| Deckenleuchten | |
| Doppel- / Mehrfachverglasung | |
| Einbauküche | |
| Fahrradraum | |
| Flachdach | |
| Fliesen | |
| Gas | |
| Getrennte Toiletten | |
| Grünblick | |
| Hauszentralheizung | |
| Kabel / Satelliten-TV | |
| Kunststofffenster | |
| Lift | |
| Öffenbare Fenster | |
| Parkett | |
| Stahlbeton | |
| Südwestbalkon / -terrasse | |
| Toilette | |
| Trennwände Gipskarton | |
| U-Bahn-Nähe | |
| WG geeignet | |
| Wohnküche / offene Küche |
Preis
Preis: € 359.000
Monatliche Gesamtkosten: € 235
Provision: 3% des Kaufpreises zzgl. 20% USt.
Anbindung öffentlicher Verkehr
| Bus | 250m |
| U-Bahn | 500m |
| Straßenbahn | 500m |
| Bahnhof | 500m |
| Autobahn | 1.500m |