LORYSTRASSE, 61 m2 Neubau mit 80 m2 Terrasse, Wohnküche, 1 Zimmer, Duschbad, Parketten, 1. Liftstock, U3-Nähe
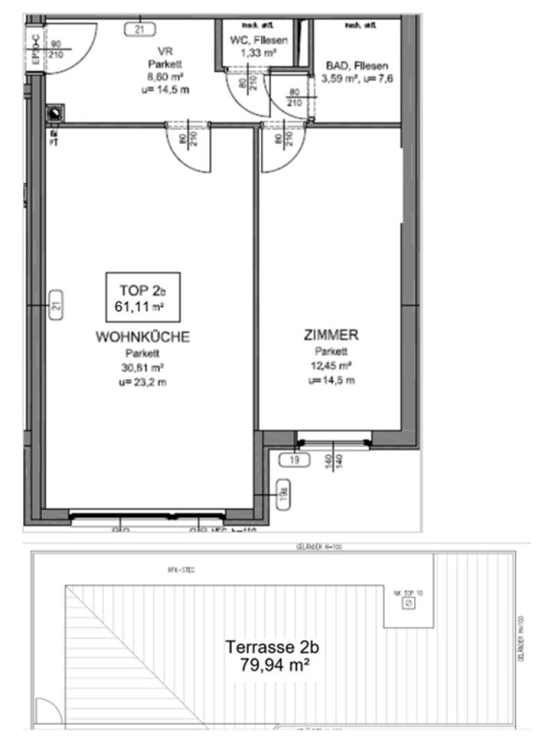
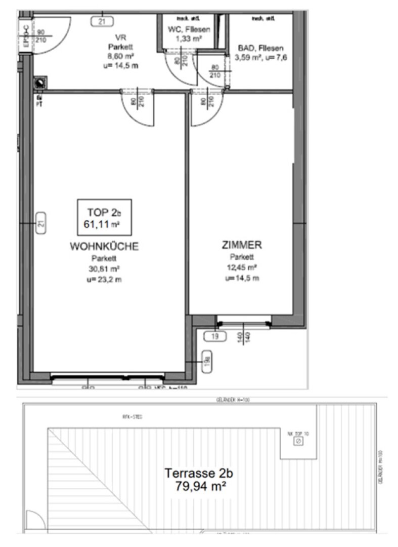
IN DER LORYSTRASSE GELANGT DIESE 61,11 m2 NEUBAUWOHNUNG MIT 79,94 m2 TERRASSE ZUM VERKAUF!
Baujahr: 2015
Vorzimmer, Wohn-Esszimmer mit Kochnische, ca. 79,94 m2 Terrasse, Schlafzimmer, Badezimmer, separates WC und Kellerabteil
Ausstattung:
+ ca. 79,94 m2 Terrasse im 3. OG
+ Küche mit Herd, Dunstabzug, Spüle, Geschirrspüler, Kühlschrank und Kästen
+ Badezimmer mit Dusche, Waschtisch, Waschmaschinenanschluss und Sprossenheizkörper
+ separates WC mit Waschgelegenheit
+ Parketten, Fliesen in den Nassräumen
+ Telekabelfernsehanschluss, Gegensprechanlage
+ Gaszentralheizung
+ Kellerabteil
+ möglicher Tiefgaragenplatz (optional)
+ HWB 26,02 kWh/m2a
Lage
LORYSTRASSE IN DER NÄHE DER U3-STATIONEN ENKPLATZ UND SIMMERING mit bester Infrastruktur des 11. Bezirks (Simmeringer Hauptstraße, Braunhuberpark, Braunhubergasse, Römerstahlgasse, Ehamgasse, Herbortgasse) sowie optimalen Verkehrsverbindungen wie die U3-Stationen Enkplatz und Simmering und die Linien 11, 71, D, 15A, 69A, 72A + 73A. Der Bahnhof Wien-Simmering mit der Verbindung Wien-Bratislava, R 81, REX 8, REX 81 + S80 ist ebenso in unmittelbarer Nähe.
Sonstiges
Kaufpreis - Wohnung: € 299.000,00 lastenfrei
Kaufpreis - Stellplatz: € 25.000,00 lastenfrei (Kauf nicht verbindlich!)
Derzeitiger Mietertrag für den Garagenstellplatz: Nettomiete € 87,50 per Monat
Betriebskosten - Wohnung:
€ 268,36 inklusive Aufzug und 10 % MwSt. per Monat
Betriebskosten - Garage
€ 24,02 inklusive MwSt. per Monat
Die Rücklagen belaufen sich derzeit auf ca. € 0,37 per m2 und werden erst seit/ab 03/2024 vorgeschrieben, daher noch keine nennenswerte Gesamtrücklage.
Strom, Heizung, mögliche TV/Internet-Anschlüsse werden gesondert zur Vorschreibung gebracht!
Vermittlungsprovision: 3 % der Barkaufsumme zzgl. 20 % MwSt.,
Die Kosten der Vertragserrichtung und grundbücherlichen Durchführung sowie Barauslagen und Stempelgebühren trägt der Käufer
Aufgrund des neuen Fernabsatz- und Auswärtsgeschäfte-Gesetzes zur Umsetzung der EU-Verbraucherrechte-RL, ersuchen wir Sie um Ihr Verständnis, dass wir Ihnen die gewünschten Objekt-Unterlagen erst nach Ihrer Bestätigung, dass Sie unser vorzeitiges Tätigwerden wünschen und über Ihre Rücktrittsrechte aufgeklärt wurden, per Mail zusenden können. Bevor Sie die Unterlagen übermittelt bekommen, erhalten Sie eine gesonderte Mail mit dem notwendigen Hinweis. Obige Angaben basieren auf Informationen des Eigentümers. Der guten Ordnung halber möchten wir festhalten, dass im Falle eines Abschlusses mit Ihnen oder einem von Ihnen namhaft gemachten Dritten unser Honorar (lt. Honorarverordnung für Immobilienmakler, BGBI. 262 und 297/1996) 3 % des Kaufpreises zzgl. der gesetzlichen MwSt. beträgt. Es gelten unsere allgemeinen Geschäftsbedingungen. Irrtum vorbehalten. Hinweis gemäß Energieausweisvorlagegesetz: Ein Energieausweis wurde vom Eigentümer bzw. Verkäufer, nach unserer Aufklärung über die ab 1.12.2012 geltende generelle Vorlagepflicht bereits vorgelegt. Wir übernehmen keinerlei Gewähr oder Haftung für die tatsächliche Energieeffizienz der angebotenen Immobilie.
Lage
Adresse: Lorystraße, 1110 Wien
LORYSTRASSE IN DER NÄHE DER U3-STATIONEN ENKPLATZ UND SIMMERING mit bester Infrastruktur des 11. Bezirks (Simmeringer Hauptstraße, Braunhuberpark, Braunhubergasse, Römerstahlgasse, Ehamgasse, Herbortgasse) sowie optimalen Verkehrsverbindungen wie die U3-Stationen Enkplatz und Simmering und die Linien 11, 71, D, 15A, 69A, 72A + 73A. Der Bahnhof Wien-Simmering mit der Verbindung Wien-Bratislava, R 81, REX 8, REX 81 + S80 ist ebenso in unmittelbarer Nähe.
Details
| Angebotsnummer: 2237 | |
| 2 Zimmer | |
| 61.11 m² | |
| Wohnung | |
| Kauf | |
| Deckenleuchten | |
| Doppel- / Mehrfachverglasung | |
| Dusche | |
| Einbauküche | |
| Fahrradraum | |
| Flachdach | |
| Fliesen | |
| Gas | |
| Getrennte Toiletten | |
| Hauszentralheizung | |
| Kabel / Satelliten-TV | |
| Kunststofffenster | |
| Lift | |
| Nordostbalkon / -terrasse | |
| Öffenbare Fenster | |
| Parkett | |
| Stahlbeton | |
| Südwestbalkon / -terrasse | |
| Toilette | |
| Trennwände Gipskarton | |
| U-Bahn-Nähe | |
| Wohnküche / offene Küche |
Preis
Preis: € 299.000
Monatliche Gesamtkosten: € 239
Provision: 3% des Kaufpreises zzgl. 20% USt.
Anbindung öffentlicher Verkehr
| Bus | 250m |
| U-Bahn | 500m |
| Straßenbahn | 500m |
| Bahnhof | 500m |
| Autobahn | 1.500m |