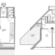
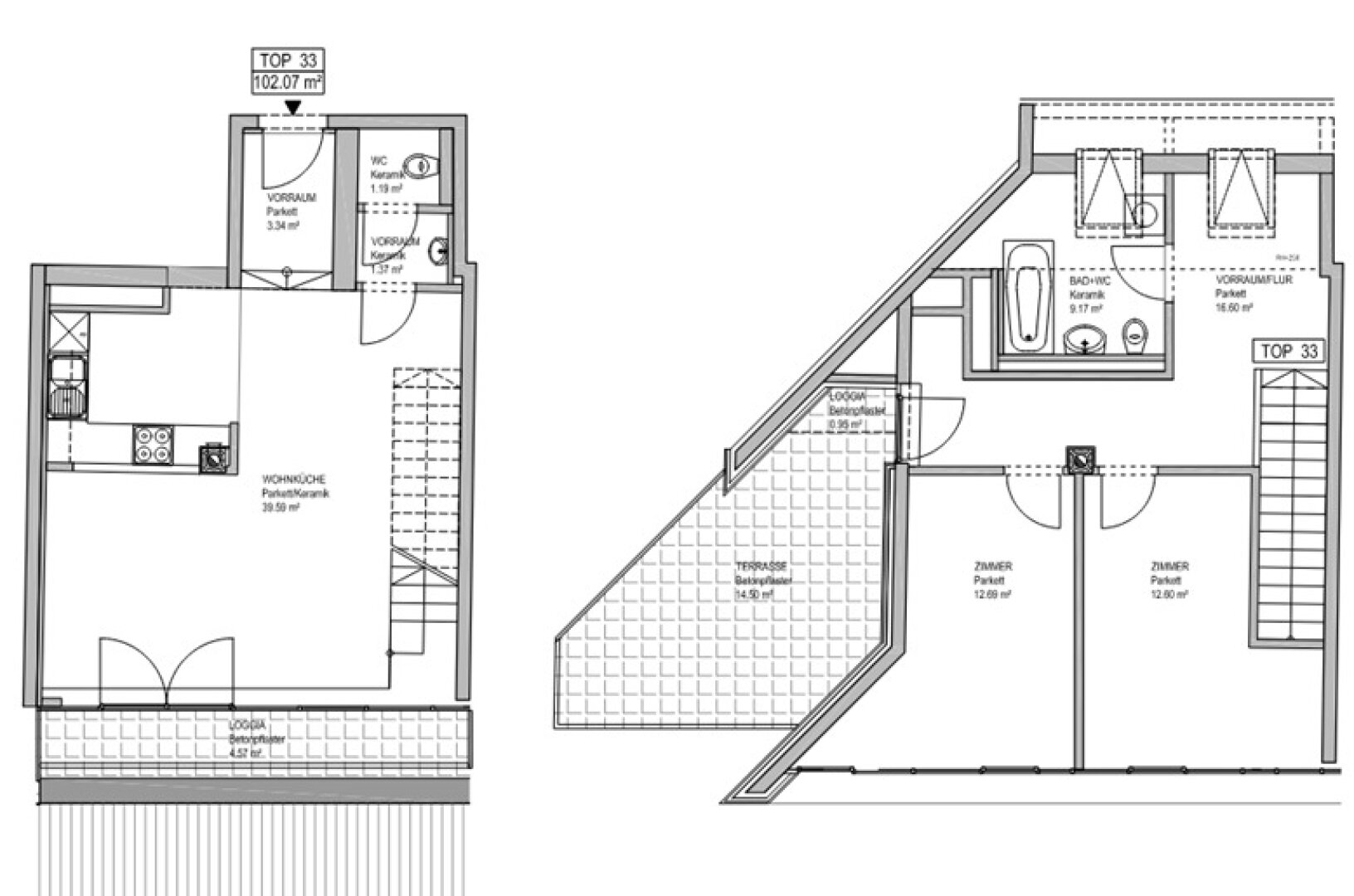
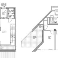
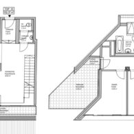
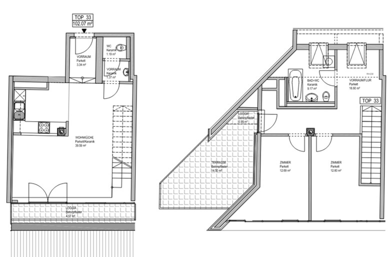
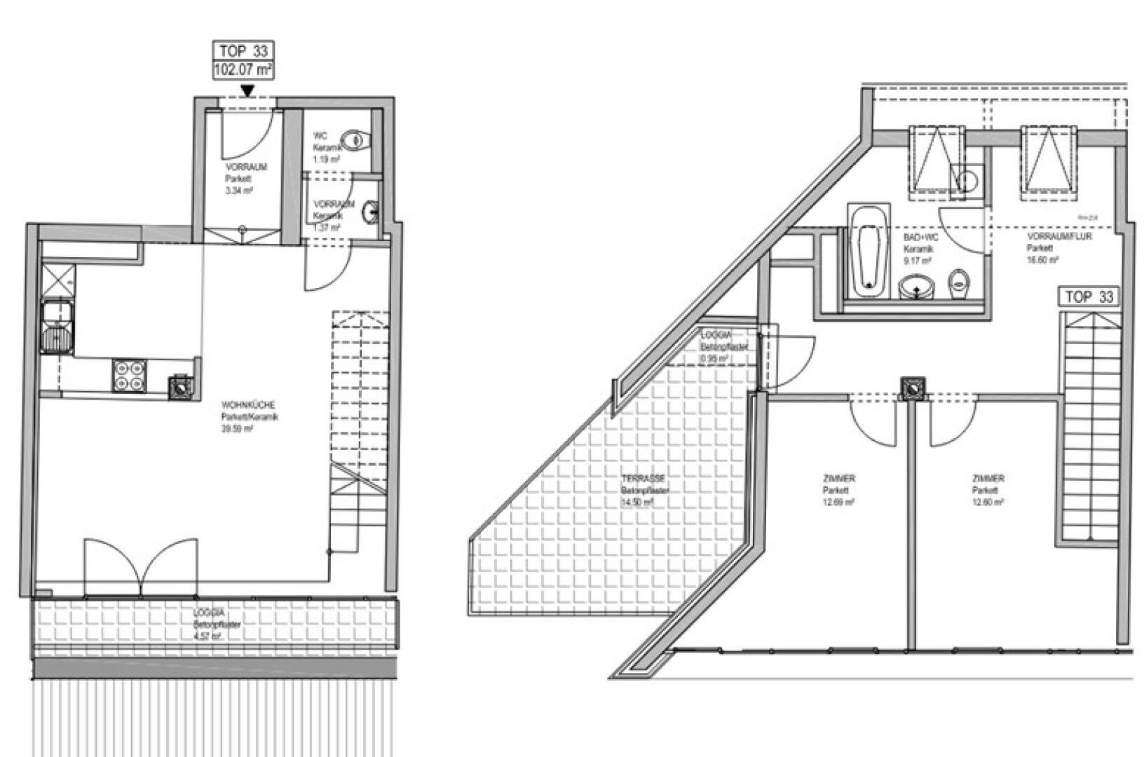
FERNBLICK, DACHGESCHOSS, 102 m2 Maisonette, Wohnküche, 2 Zimmer, Wannenbad, Parketten, Innstraße
IN DER INNSTRASSE GELANGT DIESE 102,07 m2 DACHGESCHOSS-MAISONETTE INKLUSIVE CA. 5,52 m2 LOGGIA ZZGL. 14,50 m2 TERRASSE ZUR BEFRISTETEN VERMIETUNG
Vorzimmer, Wohnküche, 2 Zimmer, Loggia, Terrasse, Badezimmer mit WC, separates WC, und Kellerabteil
Ausstattung:
+ ca. 5,52 m2 Loggia
+ ca. 14,50 m2 Terrassenfläche
+ Komplettküche mit Einbaugeräte
+ Badezimmer mit Badewanne, Waschtisch, WC und Waschmaschinenanschluss
+ separates WC mit Waschbecken
+ Parkettböden, Fliesen in den Nassräumen
+ Telekabelfernsehanschluss, Gegensprechanlage
+ Fernwärmeheizung
+ Kellerabteil
+ Lift, Fahrrad-/Kinderwagenabstellraum
+ HWB 37,40 kWh/m2a
Lage
INNSTRASSE mit bester Infrastruktur des 20. Bezirks (Vorgartenstraße, Traisengasse, Handelskai, Dresdner Straße, Donauinsel, Millenium City, Lorenz-Böhler Unfallkrankenhaus, Engerthgasse, Augarten) sowie guten Verkehrsanbindungen wie die U1-Station Vorgartenstraße, U6-Station Dresdner Straße, S-Bahn-Station Traisengasse mit S1, S2, S3, S4, S7 sowie die Linien 5A, 11A, 37A und O, 2, 5, 12 sind in Reichweite. Weiters erlangen Sie via A22 Doanuuferautobahn die Anbindungen an die Autobahnen A21, A4 sowie A2 in kürzester Zeit. Naherholungsgebiete, wie der nahegelegene Augarten, der Donaukanal, die Donauinsel oder der leicht erreichbare Donaupark sind gut und schnell zu erreichen.
Sonstiges
Gesamtmiete: € 1.898,49 inklusive Betriebskosten, Aufzug, 10 % MwSt.
Fernwärme und Strom werden vom Anbieter vorgeschrieben.
Kaution: € 5.700,00 per Überweisung
Gebühr für die Errichtung und Durchführung des Mietvertrags: € 349,00 inkl. MwSt. (HV IMV GmbH)
auf 5 Jahre befristete Hauptmiete, ablösefrei, Bezug ab 01.02.2026 möglich!
1 Jahr Kündiungsverzicht, 3 Monate Kündigungsfrist
Anbindung öffentlicher Verkehr
U1-Station Vorgartenstraße, U6-Station Dresdner Straße, S-Bahn-Station Traisengasse mit S1, S2, S3, S4, S7 sowie die Linien 5A, 11A, 37A und O, 2, 5, 12 sind in Reichweite
Ansprechpartner: ALEXANDER ROS
Mob.-Tel. +43-664-466 52 02
E-Mail: alexander.ros@ros-real.at
Der Immobilienmakler erklärt, dass er – entgegen dem in der Immobilienwirtschaft üblichen Geschäftsgebrauch des Doppelmaklers – einseitig nur für den Vermieter tätig ist.
Lage
Adresse: Innstrasse, 1200 Wien
INNSTRASSE mit bester Infrastruktur des 20. Bezirks (Vorgartenstraße, Traisengasse, Handelskai, Dresdner Straße, Donauinsel, Millenium City, Lorenz-Böhler Unfallkrankenhaus, Engerthgasse, Augarten) sowie guten Verkehrsanbindungen wie die U1-Station Vorgartenstraße, U6-Station Dresdner Straße, S-Bahn-Station Traisengasse mit S1, S2, S3, S4, S7 sowie die Linien 5A, 11A, 37A und O, 2, 5, 12 sind in Reichweite. Weiters erlangen Sie via A22 Doanuuferautobahn die Anbindungen an die Autobahnen A21, A4 sowie A2 in kürzester Zeit. Naherholungsgebiete, wie der nahegelegene Augarten, der Donaukanal, die Donauinsel oder der leicht erreichbare Donaupark sind gut und schnell zu erreichen.
Details
| Angebotsnummer: 2354 | |
| 3 Zimmer | |
| 102.07 m² | |
| Wohnung | |
| Miete | |
| Bad mit WC | |
| Badewanne | |
| Deckenleuchten | |
| Doppel- / Mehrfachverglasung | |
| DVB-T | |
| Einbauküche | |
| Fahrradraum | |
| Fernblick | |
| Fernwärme | |
| Flachdach | |
| Fliesen | |
| Getrennte Toiletten | |
| Hauszentralheizung | |
| Kabel / Satelliten-TV | |
| Lift | |
| Öffenbare Fenster | |
| Parkett | |
| Stahlbeton | |
| Südwestbalkon / -terrasse | |
| Toilette | |
| Trennwände Gipskarton | |
| U-Bahn-Nähe | |
| WG geeignet | |
| Wohnküche / offene Küche |
Preis
Preis: € 1.898
Monatliche Gesamtkosten: € 1.898
Kaution: 5.700,00 €
Provision: Gemäß Erstauftraggeberprinzip bezahlt der Abgeber die Provision.
Maximale Mietdauer: 5 Jahre
Anbindung öffentlicher Verkehr
| Bus | 250m |
| U-Bahn | 1.000m |
| Straßenbahn | 250m |
| Bahnhof | 750m |
| Autobahn | 1.250m |